产品名称:电动法兰球阀】
产品简介:
电动法兰球阀采用一体化结构,有输入控制信号(4~20mA DC或1-5V DC)及单相电源即可控制运转,具有功能强、体积小、轻便宜人、性能可靠、配套简单、流通能力,特别适合于介质是粘稠,含颗粒,纤维性质的场合。目前该阀广泛应用于食品、环保、轻工、石油、造纸、化工教学和科研设备、电力等行业的工业自动控制系统中。
工作原理:
电动法兰球阀适用于两位切断、调节的场合。电动开关型球阀阀与执行机构的连接采用直连方式,电动执行机构内置伺服系统,无须另配伺服放大器,输入4-20mA信号及220VAC电源即可控制运转。具有连线简单,结构紧凑、尺寸小、重量轻、阻力小、动作稳定可靠等优点。执行机构可根据用户要求另配置UNIC、PSQ、HQ、DHL等型号电子式电动执行机构或GTX、AL等气活塞式执行机构。
电动执行机构可直接接收计算机或工业仪表等输出的4~20mADC或1~5VDC控制信号,220VAC电源,根据阀位反馈信号与设定值比较偏差对执行机构驱动电机进行智能步距调整(PID调节),以实现与执行机构配套的阀门或其他装置开度的精确定位,同时输出4~20mADC的位置反馈信号。其核心控制部件电子式伺服控制器应用现代数字技术,对DCS/PLC规范设计而成,集信号采集、处理、反馈、控制于一体。采用独创的电子制动电路并附加机械阻尼装置消除惯性,可瞬时停机,定位时无振荡,定位精度可达0.3%以上。可控硅输出,动作时间快,输出稳定,可靠性高。体积小,轻便宜人,性能可靠,配套简单,流通能力大,特别适合于介质是粘稠,含颗粒,纤维性质的场合。目前该阀广泛应用于食品,环保,轻工,石油,造纸,化工,教学和科研设备,电力等行业的工业控制系数。
产品特点:
1、电动球阀流体阻力小,是所有阀类中流体阻力最小的一种,以AC220V、AC380V或DC24V电源电压作动力,接受(4-20mA、0-10mA或1-5VDC)电流信号或电压信号,即可控制运转,以角行程输出的扭矩转动球体0~90º,就能完成启闭动作或调节动作。
2、球芯通道平整光滑,不易沉积介质,可以进行管线式通球。结构简单、重量轻、密封性能好。 特别适用于要求高压零泄漏率的场合。
3、采用HL型、3810R型、PSQ型角行程全电子式电动执行机构为不锈钢球阀的驱动装置,机电一体化的结构设计,具有机内伺服操作和开度信号位置反馈、位置指示、手动操作等功能,功能强、性能可靠、连线简单,以AC220V或AC380V电源电压作动力,直接接受统一标准信号(4-20mA DC、0-10mA DC或1-5V DC、0-10V DC),将此转变成与输入信号相对应的位移,以角度位移(0~90º)运动,改变球芯的旋转开度,因此一定的输入信号对应一定的位置开度,实现比例调节动作。(二位开关式接受AC220V或AC380V电源电压作动力,通过电机正反转实现开关动作,并同时输出开关阀位指示信号)。是一种高精度、高性能、高可靠性类产品。
主要技术参数:
☆阀体
|
阀体形式 |
直通铸造阀 |
|
公称通径 |
DN15~300mm |
|
公称压力 |
PN1.6、2.5、4.0、6.4 MPa;ANSI 150、300LB ;JIS 10、20、30K |
|
法兰标准 |
JIS、ANSI、GB、JB、HG等 |
|
连接形式 |
法兰式、焊接式、螺纹式 |
|
阀盖形式 |
一体式 |
|
压盖型式 |
压板压紧式 |
|
密封填料 |
V型聚四氟乙烯填料、柔性石墨填料等 |
☆阀内件
|
阀芯形式 |
O/ V型球体阀芯 |
|
流量特性 |
近似快开型 |
☆执行机构
|
执行器型号 |
DSR、3810R、DZW、HQ、PSQ |
|
主要技术参数 |
电源电压:220V/50Hz、380V/50Hz、输入信号:4-20mA或1-5V·DC、输出信号:4-20mA·DC |
|
防护等级:相当IP65(或IP67)、隔爆标志:ExdⅡBT4、手操功能:手柄 |
|
环境温度:-25~+70℃、环境湿度:≤95% |
※注:如需详细执行器参数,请进入电动执行器页面进行查阅。
☆主要性能指标
|
公称通径 DN(mm) |
15 |
20 |
25 |
32 |
40 |
50 |
65 |
80 |
100 |
125 |
150 |
200 |
250 |
300 |
|
额定流量系数KV |
21 |
38 |
72 |
112 |
170 |
273 |
384 |
512 |
940 |
1452 |
2222 |
3589 |
5128 |
7359 |
|
允许压差(MPa) |
≤ 公称压力 |
|
动作范围 |
0~90°、0~360° |
|
泄露量Q |
按GB/T4213-92,小于额定KV0.01% |
|
基本误差 |
±1% |
|
回差 |
±1% |
|
死区 |
≤1% |
|
可调范围 |
250:1 |
350:1 |
☆主要零件材料
|
1 |
左阀体 |
WCB、CF8、CF8M、CF3M |
|
|
2 |
右阀体 |
WCB、CF8、CF8M、CF3M |
|
3 |
阀座 |
PEFE、PPL、304、316 |
|
4 |
球体 |
2Cr13、304、316 |
|
5 |
阀杆 |
2Cr13、304、316 |
|
6 |
密封填料 |
PTFE/柔性石墨 |
|
7 |
填料压盖 |
WCB、CF8、CF8M、CF3M |
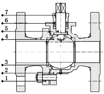
电动法兰球阀主要外形及连接尺寸
|
公称通径 DN(mm) |
15 |
20 |
25 |
32 |
40 |
50 |
65 |
80 |
100 |
125 |
150 |
200 |
250 |
300 |
|
L |
130 |
140 |
150 |
165 |
180 |
200 |
220 |
250 |
280 |
320 |
360 |
400 |
630 |
750 |
|
H |
44.5 |
49 |
55 |
65 |
65 |
75 |
90 |
95 |
115 |
127 |
140 |
172.5 |
310 |
350 |
|
H1 |
根据所配执行机构而定 |
|
D |
95 |
105 |
115 |
140 |
150 |
165 |
185 |
200 |
220 |
250 |
285 |
340 |
405 |
460 |
|
D1 |
65 |
75 |
85 |
100 |
110 |
125 |
145 |
160 |
180 |
210 |
240 |
295 |
355 |
410 |
|
D2 |
46 |
56 |
65 |
76 |
84 |
99 |
118 |
132 |
156 |
184 |
211 |
266 |
319 |
370 |
|
n-φd |
4-14 |
4-14 |
4-14 |
4-18 |
4-18 |
4-18 |
4-18 |
8-18 |
8-18 |
8-18 |
8-22 |
12-22 |
12-26 |
12-26 |
|
A、A1 |
根据阀门所需力矩而定,配置机型不同,外形尺寸也不相同 |
※注:以上参数均以国标PN1.6MPa为准,其他压力等级请咨询公司技术部,表中尺寸为不带标准附件数据,另由于产品改进技术创新参数可能有一定变化,请咨询公司技术部门索取最新数据
一、在经销代理商验收时,属于工厂生产环节的问题包换;
二、在一年保用期内的产品自身问题,代理拍照留存传回我公司客服确认,及时确定处理方式,缩短维修和解决时间;
三、专业的售后服务部门,配备专业的服务人员和技工,提供网络在线客服和400-086-9418服务电话。
四、为每个客户或经销代理商建立售后服务档案,定期电话回访,及时到位的提供终身跟踪售后服务。
五、在收到电话或书面有关售后服务的要求后,1小时内安排专人进行处理,24小时内作出相应回应服务;若情节严重无法短时间内解决,做出书面解释并明确解决时间;
六、投诉及建议方法:
如果您对我们的产品或服务不满意,您可以通过以下方式提交相关投诉或建议内容,我们将根据您提出的问题,尽快提出解决方案,并回复到您!
服务电话:400-086-9418